Villa a schiera d'angolo in vendita

Bardolino, Via Casetta Fossa
€ 860.000
5 locali 5 locali
180 Mq 180 Mq
4 bagni 4 bagni

Villa a schiera d'angolo in vendita

Bardolino, Via Casetta Fossa

Descrizione annuncio

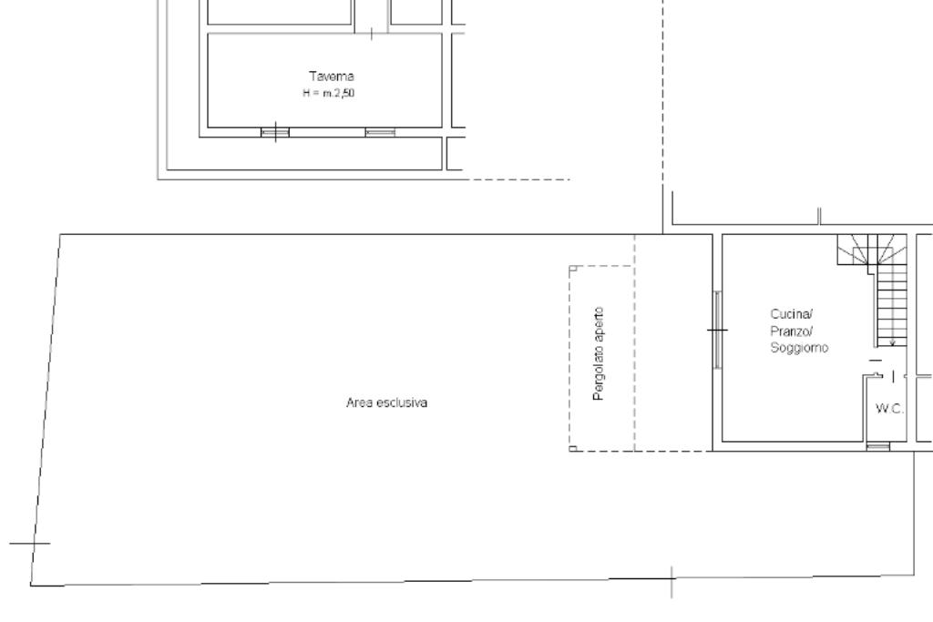
BARDOLINO: a pochi passi dal centro paese proponiamo interessante soluzione di villa a schiera d'angolo con giardino privato di circa 200 mq inserita in contesto di residence con piscina. L'abitazione che gode di un ingresso indipendente pedonale e carraio si sviluppa su quattro livelli. Al piano interrato troviamo due ampie camere da letto finestrate, un bagno e una taverna; al piano primo al quale si accede per mezzo di una comoda scala troviamo un bagno finestrato e la zona giorno con ampia vetrata che conduce ad un patio esterno protetto da vetrate scorrevoli direttamente sul giardino, perfettamente curato e piantumato; al piano primo due grandi camere da letto con uscita sul grande terrazzo e un bagno con finestra; al piano secondo e ultimo una grande mansarda adibita a camera da letto con un ulteriore bagno. A completare la proprietà due garage di cui uno direttamente collegato all' abitazione e un posto auto esterno. Soluzione ideale sia come prima casa viste le grandi dimensioni sia come casa vacanze.

Mostra tutto

Nelle vicinanze

Trasporto pubblico Trasporto pubblico
Campagnola
Campagnola
340 m
Bardolino
Bardolino
560 m
Bardolino
810 m
Cisano
1,4 Km
Ricariche auto elettriche Ricariche auto elettriche
Hotel Caesius Thermae Spa
830 m
Scuole Scuole
Scuola Secondaria Primo Grado
980 m
Scuola Primaria
990 m
Scuole
1,1 Km
Scuola materna
2,9 Km
Scuola Primaria Calmasino
3,0 Km
Farmacia Farmacia
Parafarmacia
560 m
Farmacia Alla Madonna
580 m
Ospedali Ospedali
Medical Clinic
880 m
Croce Rossa Italiana Comitato di Bardolino Baldo Garda
1,4 Km
Ospedali
1,4 Km
Croce Rossa Italiana
1,4 Km
Supermercati Supermercati
Eurospar
240 m
SuperTERRY
530 m
Lidl
540 m
Supermercati
1,9 Km
GardaGourmet
2,7 Km
Negozi Negozi
Panificio Pasticceria Bullio
800 m
Tiziani Due
810 m
el bothegernoo
830 m
D.Vision
850 m
TIZIANI & GARAGE
880 m
Bar Bar
Bar
530 m
Lido Mirabello Beach
670 m
Munus
690 m
Bar Cafè Italia
780 m
Caffè Centrale
790 m
Ristoranti Ristoranti
La Veranda
190 m
Gio
290 m
Le Palafitte
480 m
Ristorante La Terrazza
500 m
Speck Stube
640 m
Mostra tutto

Caratteristiche

Rif.:
61120103
Piano:
Su più livelli di 4
Totale piani:
4
Box:
2
Posti auto:
1
Terrazzi:
1
Mostra tutto
Prezzo Prezzo
€ 860.000
Rata mutuo Rata mutuo
€ 4.082 / mese
Proponi il tuo prezzoProponi il tuo prezzo

Classe Energetica

Questo immobile è esente da classe energetica
Anno di costruzione:
2005
Riscaldamento:
Autonomo
Tipo impianto:
A radiatori
Tipo alimentazione:
Metano

Ti interessa visionare l'immobile?

Fissa un appuntamento  Fissa un appuntamento

Richiedi informazioni

Clicca su Leggi per aprire l'informativa
* Questi campi sono obbligatori

Calcola il tuo mutuo

Semplice e senza impegno
Anticipo

( % )
Mutuo

( % )

pochi semplici passi

inserisci i tuoi dati
Questionario completato
Grazie per aver richiesto un appuntamento senza impegno con un nostro Consulente del Credito e Assicurativo.

Hai inserito correttamente tutti i dati necessari e a breve riceverai una e-mail con un link da convalidare per inviare i tuoi dati.
Affiliato
Garda Est Srl
Via Petrarca, 1 37011 Bardolino (VR)

Il nostro staff


  • Andrea Verita
    Affiliato

  • Silvia Fornale'
    Responsabile

  • Michele Beghini
    Collaboratore

  • Francesco Benico
    Collaboratore

  • Paolo Pachera
    Responsabile
Via Petrarca, 1 37011 Bardolino (VR)
Zona: Lago di Garda - Bardolino
Mostra su mappa
Orari: dal lunedì al venerdì: mattina 9.00 - 13.00, pomeriggio 15.00 - 19.30. Sabato: mattina 9.00 - 13.00, pomeriggio 15.00 - 18.00.
Affiliato
Garda Est Srl
Via Petrarca, 1 37011 Bardolino (VR)

2026 Tecnocasa Franchising S.p.A. - P. IVA 08365160152 - Via Monte Bianco 60/A 20089 Rozzano (MI). Ogni agenzia ha un proprio titolare ed è autonoma. Privacy policy | Policy utilizzo | Cookie policy